rx927 Posted February 21, 2017 Share Posted February 21, 2017 Hi All, Undertaking a full front frame rail replacement on my 74 260z. We have welded in the engine swap cradle and now the welder ran into an issue while welding on the tension rod mounts. Using the dimensions in the diagram attached. The tension rod mounts would have to be moved up an inch. Obviously with stock tension rods, this would mess with the suspension. However, would adjustable tension rods solve this issue (allow for enough caster adjustment) if we had to weld the mounts an inch forward? Pictures to follow. Quote Link to comment Share on other sites More sharing options...
seattlejester Posted February 21, 2017 Share Posted February 21, 2017 Have a picture of why it can't be located in the same spot? I might understand moving it down an inch, but moving it up an inch seems odd as that would put it in the frame rail. They are designed to take the braking load so as designed they should be in the same plane as the wheel during braking. If you move it up an inch, it would no long be on the correct plane for the stock suspension geometry, but given that this was designed in regards to stock suspension a lot of cars are not at that height anyway. You could probably calculate the exact ideal location and make your own mount. Keep in mind though that moving the pivot may prove problematic if your suspension still moves through the entire arc of travel as it may the tension arm may cause the control arm to bind or try and move forward/backward during the full sweep of the travel. Quote Link to comment Share on other sites More sharing options...
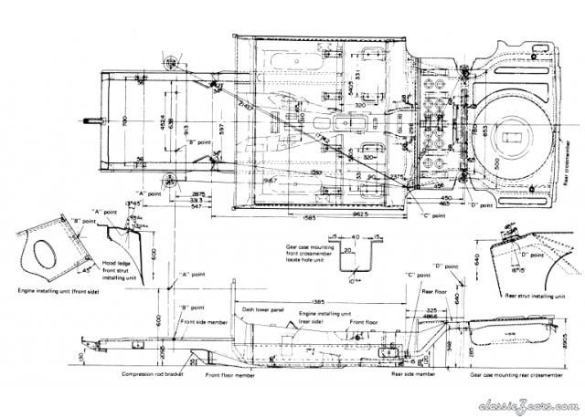
rx927 Posted February 22, 2017 Author Share Posted February 22, 2017 (edited) I hope these picture clarify. From our understanding the chassis diagram calls for 13 inches from the strut tower center to the backside of the mount. We are only getting about 12 inches from the strut tower center till the furthest (closest to the firewall) point the compression rod mount can be welded. Edited February 22, 2017 by rx927 Quote Link to comment Share on other sites More sharing options...
LLave Posted February 22, 2017 Share Posted February 22, 2017 No tech to add directly, but go check out JMortensen's build tread, as I recall he went into a fair amount of depth regarding suspension pick-up points. Quote Link to comment Share on other sites More sharing options...
NewZed Posted February 22, 2017 Share Posted February 22, 2017 Undertaking a full front frame rail replacement on my 74 260z. We have welded in the engine swap cradle and now the welder ran into an issue while welding on the tension rod mounts. Where'd you get the frame rails? And why'd you weld the engine mount on before verifying proper fitment? You seem to be combining two things in to one. An engine mount for some as-yet unidentified engine, and frame rail replacement. Not really connected to each other. You wrote like the engine mount is part of the rail replacement, but it's not. Seems like you might be on the start of a trail of errors. Quote Link to comment Share on other sites More sharing options...
seattlejester Posted February 22, 2017 Share Posted February 22, 2017 (edited) That looks like a beta motor sports 2jz mount, given I think the actual one had the L brackets upside down as to how you have them to prevent the engine from pulling the frame rails from the fenders. And ok. I read that completely wrong. I read it as moving up an inch not forward by an inch. Moving the mount forward is possible although keep in mind the angle the bucket is welded on will change slightly if you are trying to hit the same point on the LCA. On a lower control arm like the GTX-2 unit it probably won't be as big a concern since the tension arm locates on a pivot so the angle of approach will be more or less indifferent. The problem will be the force vector under breaking. Moving it forward an inch shouldn't disrupt it too much I imagine especially if you go with a LCA with a pivot point attachment rather then an L type attachment. The problem will be your overall angle would change. Example if you make a straight knife hand to represent the wheel and use your other hand to poke the center of your palm at ~45* and apply force backwards toward your body with your knife hand you are recreating the force the tension arm sees. Now tilt your poking hand to a more perpindicular angle and you will find the your wheel hand will try and pivot backwards easier while your poking hand is going to want to buckle. The concern would be more stress on the tension arm. Newzed's remark does beg the question though. Is the reason you can't put the bucket in a factory style location is because the slope on your new frame rail starts too soon preventing you from going further back? If so I would be tempted to just notch the new frame rail and put it where it is factory. Most control arms seem to hit further forward for more caster, rarely that much shorter. Edited February 22, 2017 by seattlejester Quote Link to comment Share on other sites More sharing options...
cgsheen Posted February 24, 2017 Share Posted February 24, 2017 I hope these picture clarify. From our understanding the chassis diagram calls for 13 inches from the strut tower center to the backside of the mount. We are only getting about 12 inches from the strut tower center till the furthest (closest to the firewall) point the compression rod mount can be welded. In my 260Z FSM that frame dimension drawing shows the datum line you're referencing to be the center of the hole in the compression rod mount - not the "back" of the mount. That may mean you're farther away from stock than you think. Quote Link to comment Share on other sites More sharing options...
Recommended Posts
Join the conversation
You can post now and register later. If you have an account, sign in now to post with your account.